
Documentatie van omgevingen
Met een 360-graden-camera kunnen complete omgevingen snel worden gedocumenteerd. In de onderstaande demonstrator wordt een appartement in aanbouw gecapteerd aan de hand van deze techniek.

Inkorting benodigde tijd
De indoor as-built-registratie van gebouwen kan tijdrovend zijn als dit wordt gedaan met reguliere foto’s die telkens maar een klein deel van een ruimte vastleggen. Het gebruik van een 360-gradencamera kan de benodigde tijd aanzienlijk verkorten. Deze camera’s maken met een druk op de knop een foto van de gehele omliggende omgeving, van links tot rechts, boven tot onder.

Voorbeeld van een 360-gradenfoto
Dit is een voorbeeld van een 360-gradenfoto waarmee het interieur van een appartement in aanbouw wordt vastgelegd. Het nemen van de foto’s voor een heel appartement neemt enkele minuten in beslag. In de foto’s kan intuïtief worden rondgekeken, zoals bijvoorbeeld ook mogelijk is bij Google Street View.

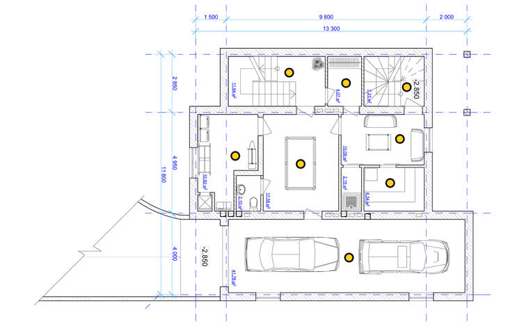
Toevoeving foto's aan grondplan
Indien gewenst kunnen de foto’s op een grondplan worden geplaatst (zie gele stippen), zodat duidelijk is welke foto op welke plaats werd genomen. Omdat de as-built-registratie van een locatie op deze manier snel kan verlopen, wordt het een stuk gemakkelijker om herhaalde opnames te maken vanop dezelfde locatie ten behoeve van werfopvolging.

Bepalen van ruwe afmetingen
Indien er een gekende afstand is in een foto (veelal de afstand tussen de camera en de vloer) is het aanvullend mogelijk om de ruwe afmetingen te bepalen van muren, ramen en andere elementen. Het nemen en visualiseren van foto’s kan met behulp can gratis software. Voor het plaatsen van foto’s op een grondplan of het maken van metingen zijn commerciële oplossingen beschikbaar. Er zijn ook (toekomstige) mogelijkheden voor het automatisch herkennen van materialen en objecten in deze foto’s door middel van kunstmatige intelligentie.
Contact
Heeft u een vraag over digitaal meten? Of heeft u een case? Aarzel niet om ons te contacteren!
Dit document maakt geen deel uit van de officiële publicaties van Buildwise. Verspreiden of vertalen, geheel of gedeeltelijk, is alleen toegestaan met voorafgaande toestemming van Buildwise.
Dit document is een projectresultaat, opgesteld in het kader van een VLAIO-gefinancierd project. De getuigenissen, toepassingsvoorbeelden, bevindingen, analyses en adviezen in dit document zijn uitsluitend bedoeld ter inspiratie en informatie.